Abbildung ähnlich
GSAB

02464243
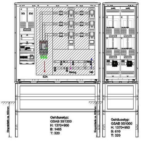
GSAB 25.W400.AR-01Ei Wandlermessung Netze BW

25.W400.AR-01Ei 4260248715777 25.W400.AR-01Ei
auf Anfrage
je 1 ST
keine Verfügbarkeitsinformationen

Verpackungseinheiten

1 ST Menge übernehmen

Funktionen

Verkaufsdaten

Mindestbestellmenge 1 ST
Bestellschritt 1 ST

Beschreibung

Wandlermessung Netze BW bis 400 A mit Netzüberw. + 2xLasttrennschaltern >100 kVA, Überschusseinsp.

Merkmale

Verpackungseinheit 1
Gewicht 90
Gewichtseinheit KG
Gewichtbezugsmenge 1
eClass 11.0 - Klasse 27210902
UNSPSC 14.0801 - Klasse 39121032
Kurzbeschreibung Wandlermessung Netze BW bis 400 A mit Netzüberw. + 2xLasttrennschaltern >100 kVA, Überschusseinsp.
FAQ
Live-Tracking
Kontakt
Kunde werden