02465439
GSAB 39.00.1P11ezAPZRfZ Zähleranschlußsäule
39.00.1P11ezAPZRfZ
4260641554287
39.00.1P11ezAPZRfZ
auf Anfrage
je 1 PAK
keine Verfügbarkeitsinformationen
Verpackungseinheiten
| 1 PAK | Menge übernehmen |
Funktionen
Verkaufsdaten
| Mindestbestellmenge | 1 PAK |
| Bestellschritt | 1 PAK |
Beschreibung
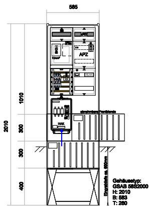
GSAB-Säulenprogramm – Zähleranschlusssäule mit APZ und RfZ für steuerbare Verbraucher. Gehäuse mit Eingrabsockel aus heißgepresstem, hochschlagfestem, wärmebeständigem, selbstverlöschendem, halogenfreiem, verrottungsfestem, glasfaserverstärktem Polyester (SMC), beständig gegen chemische Einwirkungen, durchgefärbt ähnlich RAL 7035 grau. Gehäuse und Sockel bilden eine Einheit. Der Sockelfuß ist als Platte ausgebildet und sorgt damit für sofortige Standsicherheit beim Aufstellen im Kabelgraben. Zwei durchlaufende Befestigungsleisten mit 210 Befestigungspunkten bis in den Sockelbereich ermöglichen die individuelle Befestigung von Geräten, einer Kabelabfangschiene sowie der Montageplatte. Ausgestattet mit einer Tür, 3-Punkt-Stangenschloss mit Doppelschließanlage. Ein Profilzylinder ist eingebaut sowie ein Platz für den Profilzylinder des Netzbetreibers vorgesehen. Das waagerecht eingebaute Schließsystem ermöglicht einen werkzeuglosen Türanschlagwechsel. Bei Doppelschließsystem erfolgt die Verriegelung mit einem Profilzylinder unabhängig vom zweiten. Eine Wetterschutzabdeckung der Profilzylinder aus besonders verstärktem Zinkdruckguss verhindert Vandalismusschäden. Material: glasfaserverstärktes Polyester (SMC) nach IEC-695-2-1, halogenfrei. Maße: Höhe 2010 mm mit Sockel (Eingrabtiefe ca. 600 mm), Breite 585 mm, Tiefe 280 mm. Schutzart: IP44. Ausführung gemäß TAB (oder TAB-gleiche Stadtwerke) für Zähler ohne TSG-Feld. Bestückt mit: Hausanschlusskasten 3x NH00 oder vorbereitet für HAK, Sammelschienensystem 250A (nAR), vorbereitet zum Einbau von SH-Schaltern, Spannungsversorgung B10/25kA 1pol (plombierbar) für RfZ auf Buchsenstecker, 4-Leiter-Verdrahtung (TT-Netz) mit H07V-K 16mm², Zählerfelder für Dreipunktbefestigung 450x250 mm, 1x RfZ-Feld 150x250 mm unbestückt, 1x APZ-Feld 300x250 mm (plombierbar) inkl. Spannungsversorgung, anlagenseitiger Anschlussraum (aAR) 300x250 mm, Hauptschalter 63A , HLAK 25mm². Bezugsquelle: www.gsab.de, E-Mail: vertrieb@gsab.de, Tel: 03636-76140. Separat zu bestellen: Sockelfüllmaterial (Blähtonkugeln), Gitterbodenplatte mit Erdungsschraube (nur erforderlich bei Nutzung für Erdung), siehe Zubehörliste.
Merkmale
| Schutzart (IP) | IP44 |
| Breite | 583 mm |
| Verpackungseinheit | 1 |
| Gewicht | 41 |
| Gewichtseinheit | KG |
| Gewichtbezugsmenge | 1 |
| Montageart | Aufputz/Unterputz/teilversenkt |
| Farbe | sonstige |
| Ausführung | 1-stöckig |
| Höhe | 2010 mm |
| Tiefe | 272 mm |
| RAL-Nummer | 7035 |
| Einbautiefe | 300 mm |
| Bemessungsstrom | 63 A |
| Anzahl der Felder | 2 |
| Einbauhöhe | 600 mm |
| Einbaubreite | 600 mm |
| Werkstoff | Kunststoff |
| Anzahl der Verteilerreihen | 3 |
| Anzahl der Zählerplätze | 1 |
| Unterer Anschlussraum | mit Sammelschiene 4-polig |
| Kurzbeschreibung | Zähleranschlußsäule EWE (1Zähler BKE-I) – mit APZ und RfZ für steuerbare Verbraucher |